简约现代 | 大学校园建筑(图1)

由 Feilden Clegg Bradley 工作室为华威大学设计的新艺术学院大楼首次将学院的部门和学校聚集在一个屋顶下。它被设计为一个参与艺术的平台。空间是开放的、吸引人的、灵活的,以促进和实现协作、创造力和创新。

The new Faculty of Arts Building designed by Feilden Clegg Bradley Studios for the University of Warwick brings together the departments and schools of the Faculty under a single roof for the first time. It is designed as a platform for engagement in the arts. Spaces are open, inviting, and flexible to promote and enable collaboration, creativity, and innovation.

简约现代 | 大学校园建筑(图2)
简约现代 | 大学校园建筑(图3)

它位于校园中心的环境中,该校园具有公园特色并与周围的乡村相连,它被设想为四个光线充足的亭子,围绕着一个中央楼梯,坐落在其场地的成熟树木中。为了保留现有的大橡树、松树和杨树,脚印台阶和曲柄。穿过场地的路线告知了建筑的体量,该建筑沿着所需的线条蜿蜒曲折,并提供了一个悬挑的悬挑,以聚集那些在图书馆、中央教学楼和艺术中心之间经过的人。 

Shaped by its context at the heart of a campus which has a parkland character and links out into the surrounding countryside, it is conceived as four light-filled pavilions grouped around a central stair sitting amongst the mature trees of its site. To retain existing large oaks, pines, and poplars the footprint steps and cranks. Routes across the site inform the massing of the building which twists along desired lines and offers out a cantilevered overhang to gather those passing between the library, central teaching building, and Arts Centre.

简约现代 | 大学校园建筑(图4)
简约现代 | 大学校园建筑(图5)

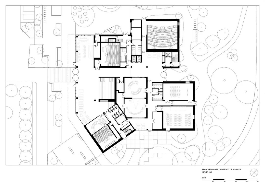
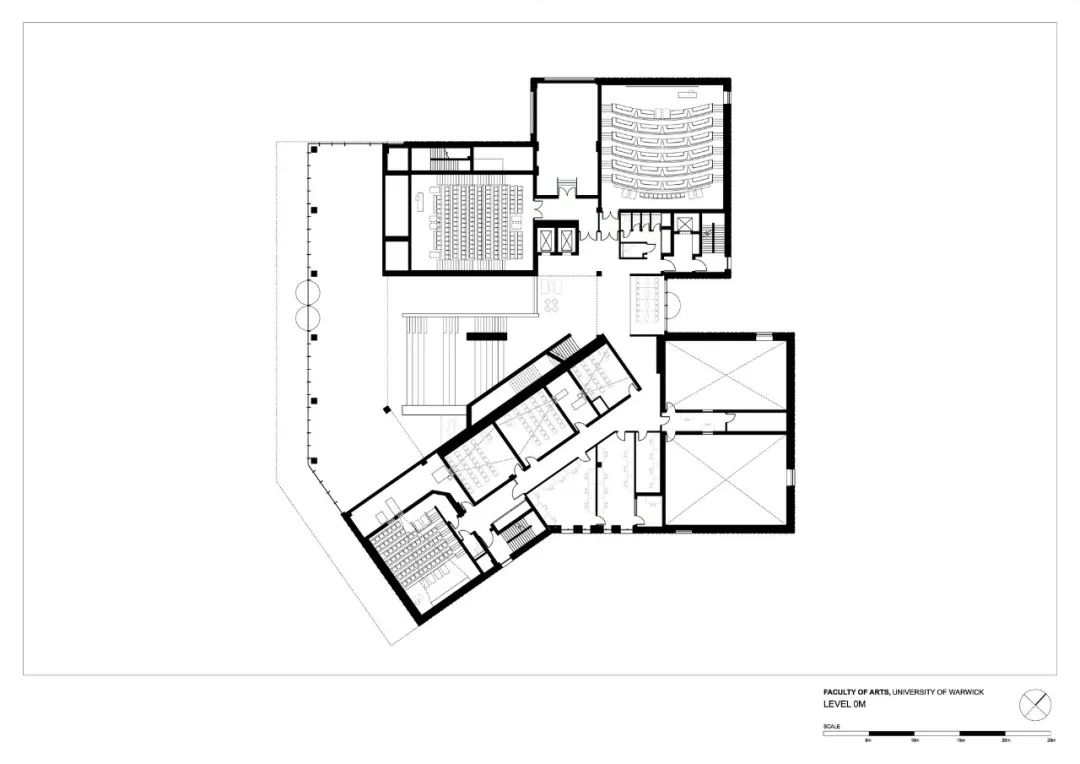
公共领域延伸到一楼的展览、社交学习和咖啡馆使用。一条内部街道提供了一条穿过建筑物的路线。街道由一系列相互连接的空隙的自然光从上方照亮,是一个充满活力的空间,为礼堂、剧院表演和向其开放的电影院空间提供突破空间。大型可移动墙壁为表演或展览提供了充斥整个底层的机会。

The public realm extends into the exhibition, social learning, and café use on the ground floor. An internal street provides a route through the building. Lit from above by natural light from the series of interconnected voids, the street is a dynamic space, providing breakout space for the auditoria, theatre performance, and cinema spaces that open onto it. Large moveable walls provide opportunities for performances or exhibitions to flood the whole of the ground floor.

简约现代 | 大学校园建筑(图6)
简约现代 | 大学校园建筑(图7)

一个巨大的木制螺旋楼梯取代了传统的中庭,环绕着一系列用作工作室、展览和活动空间的空间。楼梯被想象成一个“奇珍异品陈列室”,它是穿过建筑的主要通道,为艺术品、手稿和文物的展示以及部门之间偶然的会议和合作提供了空间。

In place of a traditional atrium, a large wooden stair spirals around a series of spaces for use as studios, exhibitions, and event spaces. Imagined as a ‘Cabinet of Curiosities’ the stair is the main route through the building offering spaces for the display of artwork, manuscripts, and antiquities as well as serendipitous meetings and collaboration between departments.

简约现代 | 大学校园建筑(图8)
简约现代 | 大学校园建筑(图9)

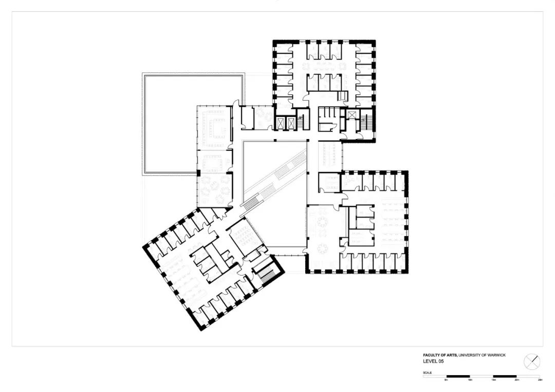
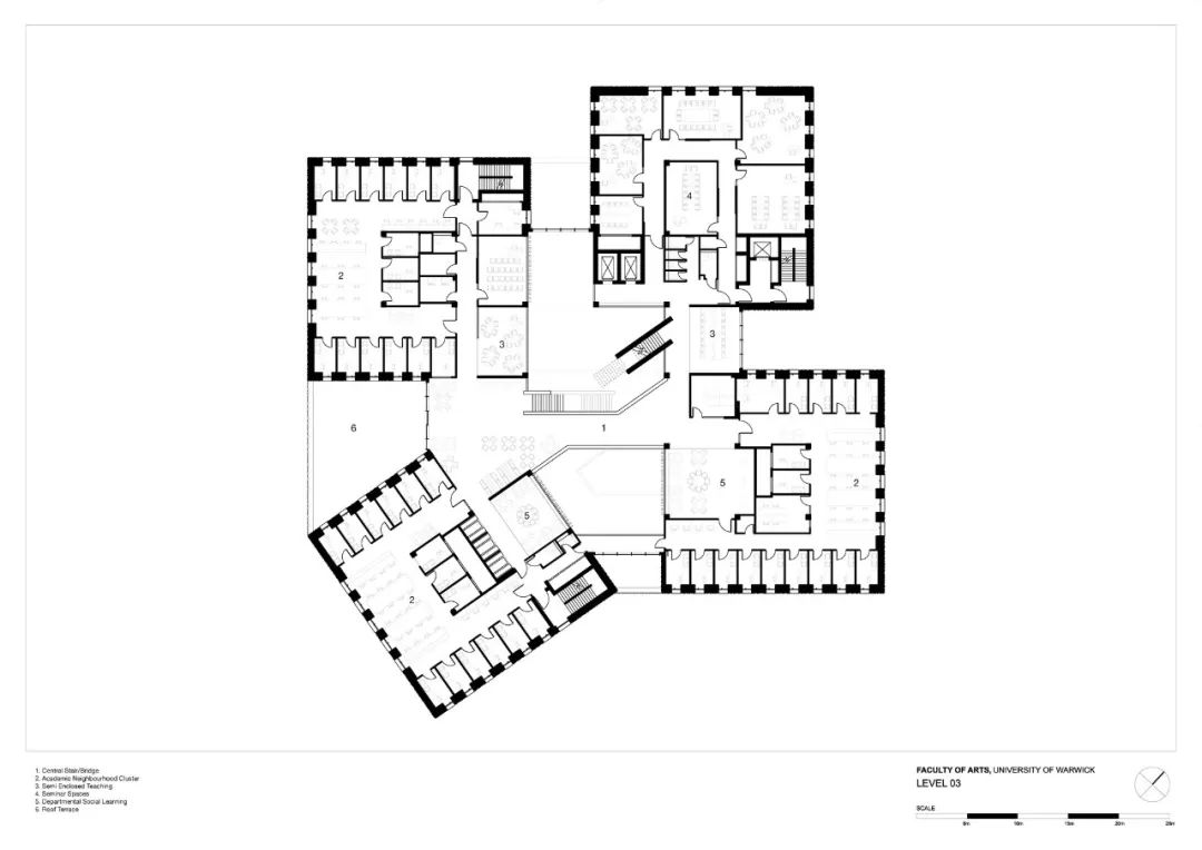
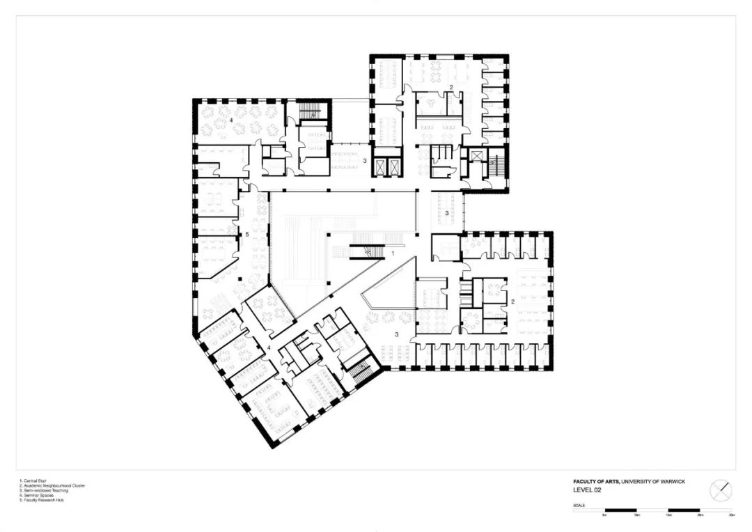
研讨室和部门空间位于正方形的 "集群 "楼板内,这些楼板从规划的中心位置延伸开来。与其像大学建筑中常见的那样,将学术工作空间和教学空间分隔在建筑的不同楼层,不如在每个楼层中混合使用。这一策略意味着用户被邀请到建筑的每一层,鼓励跨学科的合作。教学空间与学术空间的紧密相邻,也为随着时间的推移,各部门的发展提供了用途迁移的灵活性。

Seminar rooms and departmental space are located within the square ‘cluster’ floorplates which branch off from the center of the plan. Rather than separating academic workspace and teaching space across different levels of the building, as is usual within university buildings, there is a mix of uses on each level. This strategy means that users are invited to every level of the building, encouraging cross-disciplinary collaboration. The close adjacency of teaching space to academic space also provides flexibility for uses to migrate should departments grow over time.

简约现代 | 大学校园建筑(图10)
简约现代 | 大学校园建筑(图11)

集群式的楼层规划打破了建筑的体量,为学院的各个部门和学校提供了可识别的 "学术邻里 "的发展。在每个院系集群中,都提供了一个混合安排的蜂窝式共享和开放的工作空间,使个人和团队工作成为可能。每个街区都围绕着一个中央开放的 "学术工作室 "布置,其中包括用于会议和工作的阅览室桌子。

The cluster floorplan breaks down the mass of the building supporting the development of identifiable ‘academic neighborhoods’ for the various departments and schools of the Faculty. A hybrid arrangement of cellular shared and open workspace is provided within each of the departmental clusters enabling individual and team working. Each neighborhood is arranged around a central open ‘Academic Studio’ which contains reading room tables for meeting and working.

简约现代 | 大学校园建筑(图12)
简约现代 | 大学校园建筑(图13)

为了提高学生的体验,社会学习空间被集中在学术工作区的入口处,以加强部门的身份。凭借其独特的衔接形式和凹槽式赤土外墙,该建筑已成为校园的一个新地标,成为促进更广泛的艺术参与的灯塔。该建筑由FCBStudios设计,由Bowmer + Kirkland和执行建筑师MCW建造。

To enhance the student experience social learning space was concentrated at entrances to the academic workspace to strengthening strong departmental identities. With its distinct articulated form and fluted terracotta façade, the building has become a new landmark on campus, a beacon promoting wider engagement with the Arts. The building was designed by FCBStudios and constructed by Bowmer + Kirkland with executive architects MCW.


简约现代 | 大学校园建筑(图14)
简约现代 | 大学校园建筑(图15)
简约现代 | 大学校园建筑(图16)
简约现代 | 大学校园建筑(图17)
简约现代 | 大学校园建筑(图18)
区位图
简约现代 | 大学校园建筑(图19)
平面图
简约现代 | 大学校园建筑(图20)
简约现代 | 大学校园建筑(图21)
简约现代 | 大学校园建筑(图22)
简约现代 | 大学校园建筑(图23)
简约现代 | 大学校园建筑(图24)
剖面图
简约现代 | 大学校园建筑(图25)
简约现代 | 大学校园建筑(图26)
手绘图
简约现代 | 大学校园建筑(图27)
建筑师:Feilden Clegg Bradley Studios
地点:英国
面积:13260平方米
年份:2021


转载自@搜建筑