
南方大学科技园位于深圳新兴的南山大沙河创新走廊内,为技术创新和探索提供了更好的环境和平台。该项目毗邻深圳大学新校区,占地15.2公顷,包括IT孵化空间、研发办公、医疗仪器开发和创业服务。建筑和规划策略促进了技术创新和发现的环境,为企业家、研究人员和初创企业创造了孵化器和教育平台。Located within Shenzhen’s burgeoning NanShan Dashahe Innovation Corridor, the NanFang University Technology Park provides an enhanced environment and platform for technological innovation and discovery. Bordering Shenzhen University’s new campus, the 628,000 sm project comprises IT incubator space, R&D office, medical instruments development, and entrepreneurship services on a 15.2-hectare site. Architecture and planning strategies promote enhanced environments for technological innovation and discovery, creating incubator and educational platforms for entrepreneurs, researchers, and start-ups.
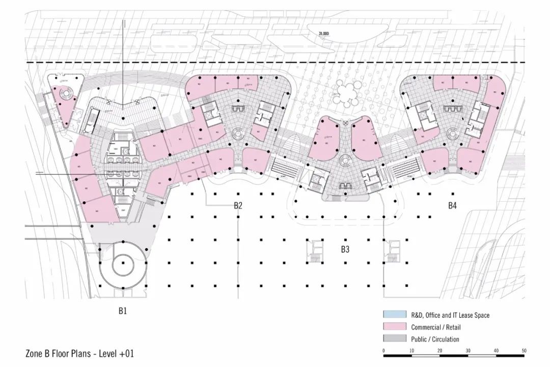
建筑设计方法承认自然是一种宝贵的资源,是知识的宝库,也是灵感的来源。 概念设计的基础是认识到,新的科学和技术努力往往直接从大自然中寻求灵感和答案。城市设计战略保留了场地的自然特征,特别是一个古老的坟丘山和现有的军事边界,同时引入了一个中央景观公共领域。 综合设计策略尊重场地现有的自然地形,并按照城市的框架进行组织--由各种方案的 "区 "组成,框架是一个中央绿地。 四个主要的 "区 "由以下内容组成,并直接反映了它们的具体功能。The architectural design approach acknowledges nature as an invaluable resource, a repository of knowledge, and a source of inspiration. Underlying the conceptual design is a realization that more often, new scientific and technological endeavors seek inspiration and answers directly from nature. The urban design strategy preserves natural site features, notably an ancient burial mound hill and an existing military boundary while introducing a central landscaped public realm. The integrated design strategy respects the site’s existing natural topography and is organized along with the framework of a city – comprised of various programmatic ‘districts’ framing a central green space. Four major ‘districts’ are comprised of the following and directly reflect their specific programmatic functions:灵感之区"--创业孵化中心 "调查之区"--医疗仪器和仪表 "知识之区"--创业和地区服务中心 "实现之区"--外包服务‘District of Inspiration’ – Entrepreneurship Incubator Center‘District of Investigation’ – Medical Instruments & Meters‘District of Knowledge’ – Entrepreneurship & District Service Center‘District of Realization’ – Outsourcing Services这些区域在程序上和建筑上是不同的,但共享一个专门的景观空间或 "城市 "中心--科技园的核心组织和社会元素。 在建筑上,各区和建筑对场地的影响做出了回应,并以独特的体量解决方案为特色,包围了中心景观,塑造了外部空间,并定义了特定的区域。 设计创新包括对场地设计的集中关注,尽量减少对自然特征的改变,并与场地地形合作,建立建筑区的标高,尽量减少地下停车场的开挖。The districts are programmatically and architecturally distinct, yet share a dedicated landscape space or ‘city’ center - the central organizational and social element of the Technology Park. Architecturally, zones and buildings respond to site influences and feature unique massing solutions which enclose the center landscape, shape exterior space, and define specific districts. Design innovation included a focused attention to site design which minimized altering natural features and working with the site topography to establish building zone elevations minimizing excavation for underground parking.这些先进的技术建筑经过深思熟虑的设计,提供了各种空间类型,可以满足多种功能需求和要求。 从具有中央中庭的建筑类型到高层办公空间,建筑方法利用独特的形状和几何形状来开辟场地景观走廊,并对外部场地的影响作出反应。The advanced technology buildings are thoughtfully designed to provide a variety of spatial typologies which can respond to multiple functional needs and requirements. From building typologies featuring central atriums to high-rise office space, the architectural approach takes advantage of distinctive shape and geometry to open up site view corridors and respond to external site influences.主动和被动环境设计策略的结合提供了降低运行成本,能源节约和材料节约。该设计具有独特的、高度灵活的建筑规划解决方案,满足了当今创新工作环境所需的功能使用和规划适应性的苛刻标准。科技园被设想为一个充满活力的城市——“探索、机遇和奖励之城”。Combinations of active and passive environmental design strategies are incorporated providing reduced operating costs, energy savings, and materials conservation. The design features unique, highly flexible architectural planning solutions meeting the demanding criteria of functional use and programmatic adaptability required for today’s innovative workplace environments. The Technology Park is envisioned as a vibrant city - the ‘City of Discovery, Opportunity, and Reward’.B1塔。 B区作为创业孵化中心,象征性地被认为是 "灵感之区",鼓励IT专业人士、科学家、企业家和有远见的人的发现和创新。 它的特色建筑和空间实现了整合研发、制造和教育平台的目标。 B1塔是一个具有建筑表现力的结构,被认为是 "灵感之塔",在科技园内占据了一个关键的位置。 它作为一个焦点,在视觉上定义了一个场地轴线,从坟丘山顶的高点延伸到场地的东端。B1 Tower. Zone B functions as the Entrepreneurship Incubator Center and is symbolically considered the ‘District of Inspiration’, encouraging discovery and innovation for IT professionals, scientists, entrepreneurs, and visionaries. It features buildings and spaces which fulfill the goal of integrating R&D, manufacturing, and education platforms. B1 Tower is an architecturally expressive structure, deemed the ‘Tower of Inspiration’, and occupies a pivotal position within the Technology Park. It serves as a focal point that visually defines a site axis extending from the high point of the burial mound hilltop, extending to the eastern tip of the site.塔楼的设计方案回应了场地和功能的影响,创造了一个独特的天际线轮廓和发展焦点。 一个精美的塔楼形状直接响应了城市环境,其几何形状与周围的建筑和谐地呼应。 在建筑上顺应环境的同时,塔楼的形状和楼层规划也是源于提供最高质量的工作空间的目标。 一个高效的平面图无缝整合了独特的办公环境设施和有利的景观机会。The Tower design solution responds to site and functional influences, creating a distinct skyline profile and development focal point. A beautifully sculpted tower shape responds directly to the urban context, and its geometry responds harmoniously with surrounding buildings. While architecturally responsive to context, the tower shape, and floor plan is derived from the goal of providing the highest quality of workspace. A highly efficient floor plan seamlessly integrates unique office environment amenities and advantageous view opportunities.在建筑上,结合主动和被动的环境设计策略,提供了降低运营成本、节约能源和节约材料。 该设计以高度灵活的规划方案为特色,满足了当今创新工作环境所需的功能使用和程序适应性的苛刻标准。 优雅蜿蜒的塔楼外形高达110米,成为科技园的焦点和该地区的标志性视觉 "标记"。Architecturally, combinations of active and passive environmental design strategies are incorporated providing reduced operating costs, energy savings, and materials conservation. The design features highly flexible planning solutions meeting the demanding criteria of functional use and programmatic adaptability required for today’s innovation workplace environments. The elegantly sinuous tower form rises 110 meters, serving as a focal point of the Technology Park and an iconic visual “marker” for the area.照片 : Guanhong Chen - ACF Vision, Ivo Semerdzhiev合作建筑师: Jaeger Kahlen Partners Architects Ltd.本地设计院:深圳市建筑设计研究院(SADI)、深圳市中汇建筑设计事务所