© 中建西北院-创意中心
中建西北院创意中心在西安市经开区城运公园动力区项目设计竞赛中拔得头筹。该竞赛由西安经济开发区经发地产有限公司组织,要求建筑师在城市核心片区设计一个以游泳为主的全民健身综合运动场馆,与现有城运公园运动场馆形成互补,打造综合型运动中心,建立城市中心片区体育场馆新地标!

© 中建西北院-创意中心
项目三侧均为居住区,保证日照和噪音控制成为设计的重点之一。采用雕塑化拱壳结构包覆整个建筑,隔绝噪音的同时,塑造一个“隐退”在街道旁的大型公共空间。拱形体量结合退台保证了日照要求。贯穿式的拱廊空间结合前广场为所有市民打造一个活跃、愉快的游憩环境。不同形式的楼梯,连廊串联退台空间,形成多元素“合奏”的交往场所成为整个场地创造“标志核心”。此外核心功能区——泳池大厅,具有高敞的空间和无遮挡的公园景色,为市民带来独特的游泳比赛体验。

© 中建西北院-创意中心

© 中建西北院-创意中心

© 中建西北院-创意中心
项目团队通过实施一系列被动设计策略,为场馆未来近乎零碳开发运营铺平前路。其中包括 BIPV 光伏薄膜板、优化 HVAC 设计、利用可再生能源等一系列举措。双层表皮幕墙,将配备自动遮阳系统、以及混合模式通风体系,实现冬夏两季模式切换。桁架体系,帮助释放内部空间,从而获得高大自由的无柱空间,创造可包容更多运动项目的、灵活使用的室内空间。

© 中建西北院-创意中心

© 中建西北院-创意中心
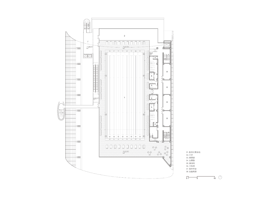
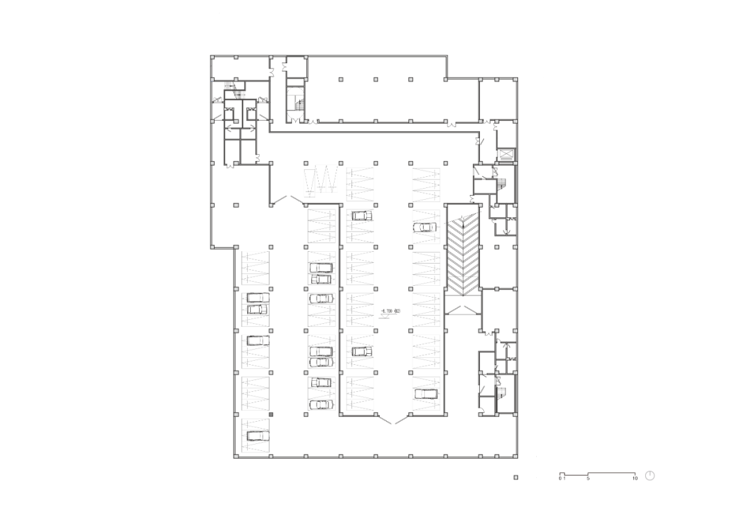
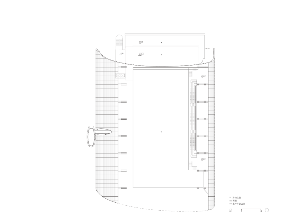
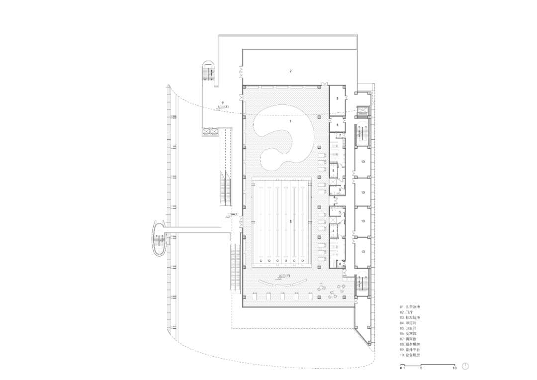
项目图纸
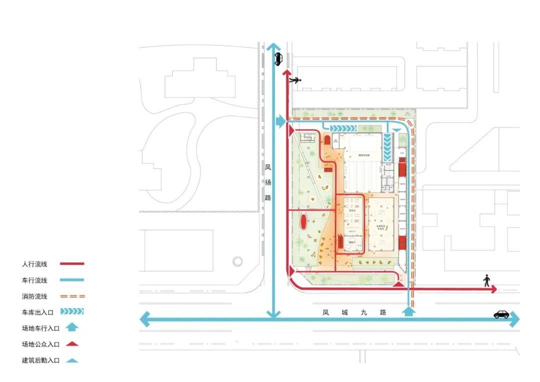
总平面图
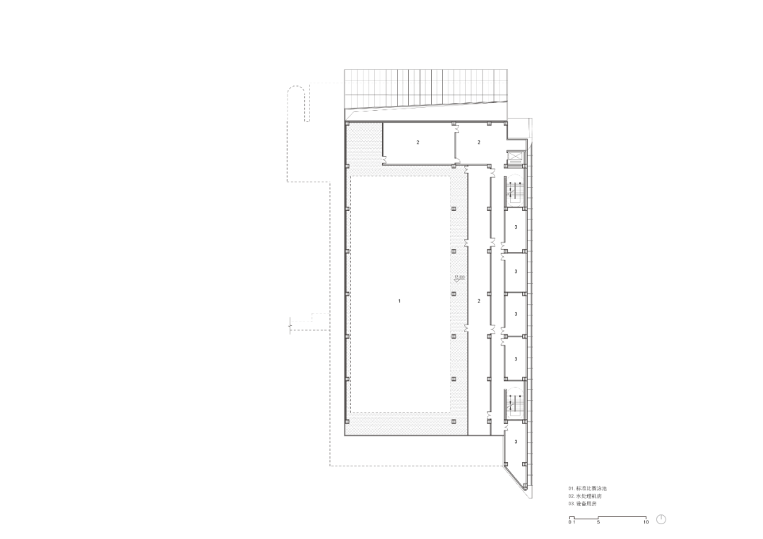
一层平面图
二层平面图
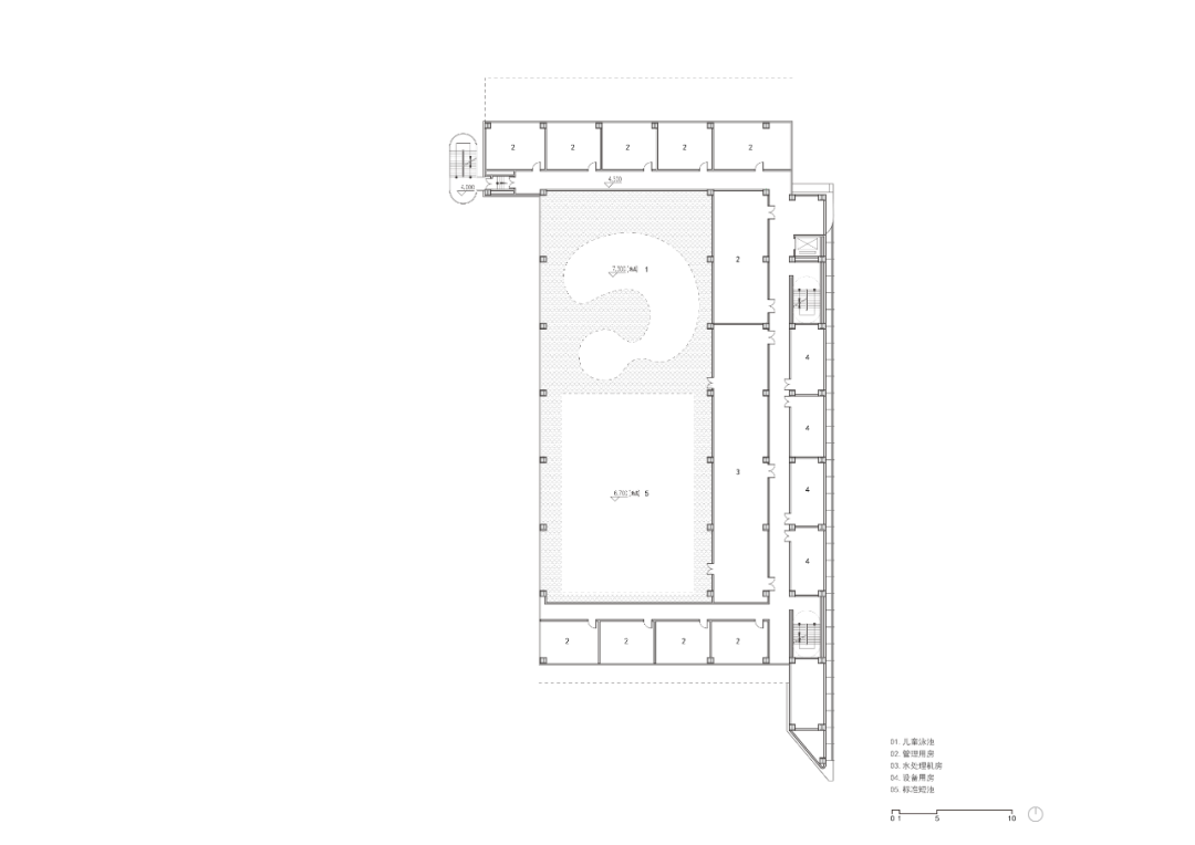
三层平面图
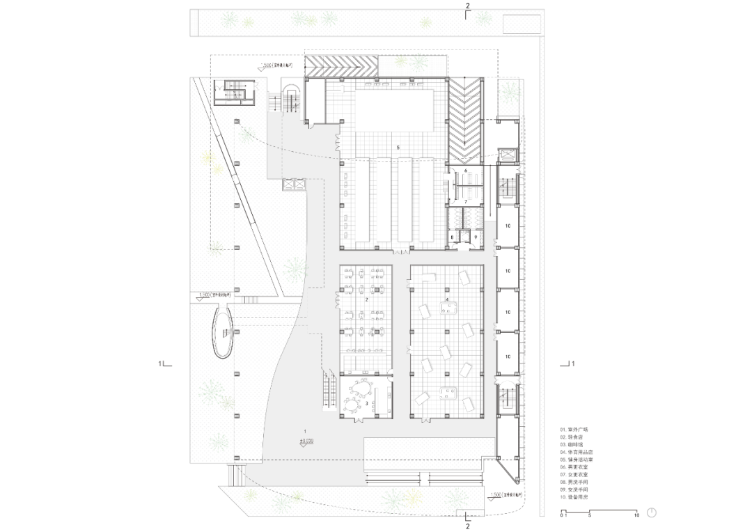
三层上平面图
地下一层平面图
地下二层平面图
夹层平面图
夹层平面图
立面图
立面图
立面图
剖面图
剖面图
轴测图
技术分析图
技术分析图
日照分析图
功能分析图
流线分析图
艺术画
艺术画
项目信息
建筑设计:中国建筑西北设计研究院创意中心
竞赛/竞标名称:城运公园动力区项目概念方案设计
预计建成年份:2025 年初
建筑面积:23166 平方米
项目地址:西安市未央区凤城九路与凤扬路交汇处东北角
主创建筑师:秦峰
设计团队:秦峰 冯雨 张冬 李婧玲 折铠·孙首康·侯国栋·于丹阳 马牧
委托方:西安经发地产有限公司
结构设计:中国建筑西北设计研究院第六建筑设计研究院第四设计部
效果图公司:西安钰博星图数据科技有限公司
文章仅用于学习交流,版权归原作者所有,如有问题,请及时与我们联系,我们将第一时间做出处理。
支付宝扫一扫
微信扫一扫