
网盘下载CIID2023年第22届“新人杯”全国大学生室内设计竞赛-酒店设计图纸图纸(内含CAD图纸和SU模型文件)。
2023年第22届“新人杯”全国大学生室内设计竞赛酒店设计图纸-SU模型图示1
2023年第22届“新人杯”全国大学生室内设计竞赛酒店设计图纸-SU模型图示2
2023年第22届“新人杯”全国大学生室内设计竞赛酒店设计图纸-SU模型图示3
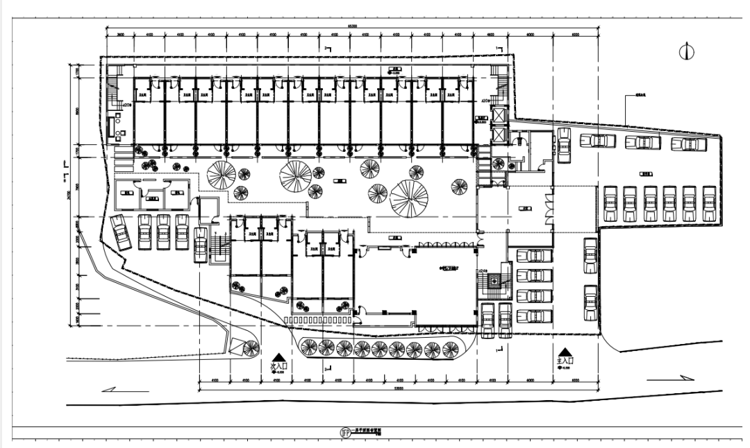
2023年第22届“新人杯”全国大学生室内设计竞赛酒店设计图纸(一层CAD平面布置图)
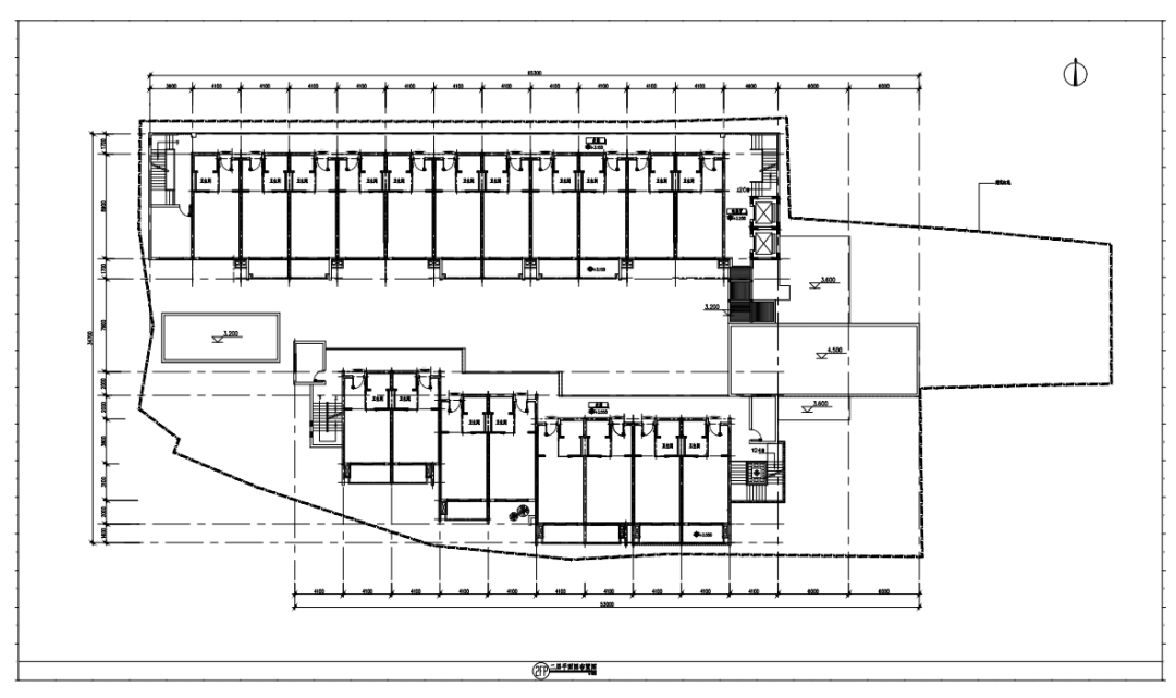
2023年第22届“新人杯”全国大学生室内设计竞赛酒店设计图纸(二层CAD平面布置图)
2023年第22届“新人杯”全国大学生室内设计竞赛酒店设计图纸(CAD南立面图)
2023年第22届“新人杯”全国大学生室内设计竞赛酒店设计图纸(CAD北立面图)
©信息来源与版权归属 中国室内
打赏
支付宝扫一扫
微信扫一扫