城市漂浮空间:大阪中之岛美术馆(图1)

项目地点:日本,大阪中之岛
建成时间:2021年
设计单位:远藤克彦建筑研究所
建筑面积:1860㎡



项目位于道岛江和土木里江之间的大阪中之岛沙洲,这里一直以来是贸易和商业活动的繁荣胜地。

场地作为连接中之岛东西两侧的重要纽带,设计团队将联通人流并将人流向各个方向引导作为设计的核心。


城市漂浮空间:大阪中之岛美术馆(图2)


城市漂浮空间:大阪中之岛美术馆(图3)


因此,建筑师选择创造一系列入口来迎接来自四面八方的人们,而并非在场地前设置特定的路线。


城市漂浮空间:大阪中之岛美术馆(图4)


由于中之岛地区面临洪水的风险,美术馆将与艺术相关的空间设在三楼及以上,以保护重要的藏品避免洪水造成的破坏。同时建筑底部两个楼层对城市开放,作为公共空间,并定期供博物馆游客以外的人使用。


最终,建筑师在底部两层的基础上,设计了一个尺度巨大、轮廓清晰的立方体几何体量,美术馆主体因此仿佛漂浮在城市上空


城市漂浮空间:大阪中之岛美术馆(图5)


建筑共包含五个楼层,主要采用了钢制框架结构,并带有基础隔离系统以及带有抗震系统的停车场,停车场与主体建筑地基之间设有伸缩缝。


底部两层的外部空间与周围景观相连,进而提升美术馆在城市之中的可达性。为了实现美术馆与城市的无缝连接,设计团队采用了一系列策略来消除建筑与周围场地的高差。


城市漂浮空间:大阪中之岛美术馆(图6)



建筑的二层与场地地形融为一体,通过人行道平台与周围的公共设施相连。此外,一条连接走道延伸到建筑的西侧,进一步将美术馆与城市连接起来,为中之岛地区未来的活力和交通便利做出了贡献


城市漂浮空间:大阪中之岛美术馆(图7)


城市漂浮空间:大阪中之岛美术馆(图8)


考虑到场地周围环境,底部两层被规划为公共大堂空间,类似于车站的大厅。贯穿二楼到四楼的自动扶梯将游客从大堂的水平视野体验转换为垂直视野,然后将人们引导进入展厅。

城市漂浮空间:大阪中之岛美术馆(图9)


城市漂浮空间:大阪中之岛美术馆(图10)


城市漂浮空间:大阪中之岛美术馆(图11)


城市漂浮空间:大阪中之岛美术馆(图12)


城市漂浮空间:大阪中之岛美术馆(图13)

美术馆的黑色外墙由609块预制混凝土板组成,表面填充了建筑混凝土、岩手根正碎石、京都宇治的碎砂、黑色颜料,以及JIS标准的轻质混凝土背衬。硬化表面随后会经过超高压水射流的粗糙处理,然后涂上高度浓缩的无机二氧化硅基化合物层,以增强材料的耐候性防止骨料掉落。


城市漂浮空间:大阪中之岛美术馆(图14)

城市漂浮空间:大阪中之岛美术馆(图15)

城市漂浮空间:大阪中之岛美术馆(图16)

城市漂浮空间:大阪中之岛美术馆(图17)

城市漂浮空间:大阪中之岛美术馆(图18)



项目图纸

城市漂浮空间:大阪中之岛美术馆(图19)
总平面图


城市漂浮空间:大阪中之岛美术馆(图20)
一层平面图

城市漂浮空间:大阪中之岛美术馆(图21)
二层平面图


城市漂浮空间:大阪中之岛美术馆(图22)
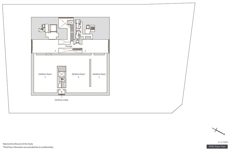
三层平面图

城市漂浮空间:大阪中之岛美术馆(图23)
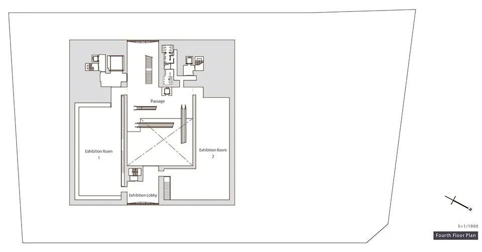
四层平面图

城市漂浮空间:大阪中之岛美术馆(图24)
剖面图

城市漂浮空间:大阪中之岛美术馆(图25)
立面图


城市漂浮空间:大阪中之岛美术馆(图26)
立面图

资料来源:
1.https://www.gooood.cn/  大阪中之岛美术馆,日本|远藤克彦建筑研究所
2.https://www.archdaily.cn/  大黑盒,大阪中之岛美术馆|远藤克彦建筑研究所